An energy efficiency upgrade (early 2025) of the apartment has just been finished ensuring comfortable living throughout the seasons. In addition, a new and bright oakwood floor has been put in (different compared to the photos) and combined with the furnishings it gives the apartment a warm character and it is now ready to be lived in. With a balcony at the back, the sunniest months of the year can be enjoyed without leaving your home. Come take a look yourself!
Layout
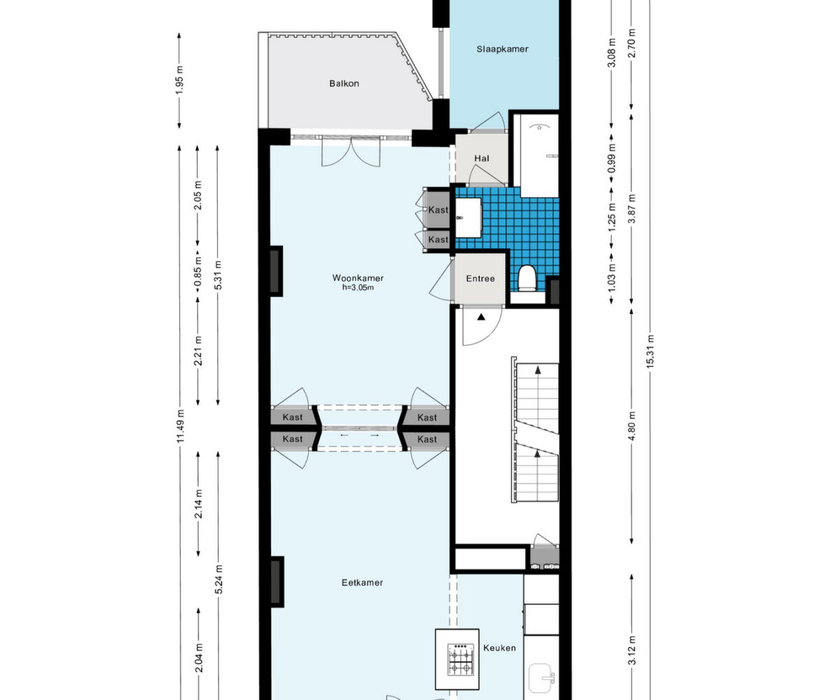
Entering the building, a communal stairwell leads up to the front door of the apartment on the second floor. A hallway provides space for coats etcetera before entering the lounge.
The lounge is situated at the back facing westwards (afternoon sun). From the lounge doors can be opened onto the balcony. There are built-in closets on either side of the sliding doors separating the lounge from the dining room. These closets are mirrored on the other side. The dining room extends to the front of the apartment where another small balcony overlooks the road below as well as the canal facing eastwards (morning sun). The dining room flows into the open and new kitchen with a so-called cooking island. Appliances range from an induction heated cooker, proper oven, fridge with a freezer section, dishwasher and washing machine.
At the back there is corridor which connects to the bedroom. Above the bed there are cupboards from wall to wall which complement the built-in wardrobe closet in the lounge. Opposite the bedroom is where the bathroom can be accessed. The bathroom comes with a washbasin furniture piece which has drawers underneath, a toilet and the bathtub plus shower in one.
Specifics
The minimum rental duration is 12 months with the deposit equaling 2 months’ rent. Flat sharing and keeping pets is not allowed. The property has been measured according to NEN2580 sizing guidelines.
Area information
The location of the apartment is a very convenient one for all sorts of activities. Weather permitting, the well known Vondelpark is just around the corner for walks, jogging or a picnic. Parallel to the Vondelpark is the Overtoom, a main road leading to the city centre where a great variety of shops, restaurants, supermarkets and other facilities such as a gym are found. Public transport is present with tram line no. 1 stopping along the Overtoom and heading to both the Central Station and Lelylaan Station offering a quick way to get to Schiphol airport. Having a bike is the easiest mode of transport and yours can be put in one of the bike racks found just outside of the apartment.
Floor plans
| Name | Beds | Baths | Size | Price | Availability | |
|---|---|---|---|---|---|---|
| Floor plan apartment | View |
Energy Efficiency
- Energy ClassA









































